デスクマくん

クリニック開業物件 No.311 【居ぬき】外苑前駅徒歩4分/約18坪

更新日 2026.03.31

★人気の人気の明治神宮外苑!いちょう並木至近物件!
★歯科クリニック居ぬき

本物件の情報は更新日時点の情報であり、最新情報においては募集が終了している若しくは条件が変更されている場合などがございます。予めご了承ください。

物件の基本情報

  • 賃料
    519,376円
  • 坪単価
    28,600円
  • 共益費
  • 所在地
    東京都港区南青山2丁目11-11
  • 駅徒歩
    東京メトロ銀座線「外苑前」駅 徒歩4分
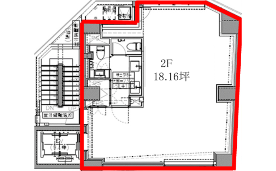
  • 専有面積
    18.16坪/60.06㎡
  • 竣工
    2019年2月
  • 構造
    RC造地上7階建
  • 敷金/保証金
    8ヶ月/3,777,280円
  • 償却/更新料
    2ヶ月/新賃料の1.1ヶ月分
  • 契約期間
    3年
  • 契約種類
    普通建物賃貸借契約

こだわり条件

  • 床仕様
  • 物件形態
    居ぬき