デスクマくん

クリニック開業物件 No.272 TH西新宿ビル

更新日 2025.12.11

本物件の情報は更新日時点の情報であり、最新情報においては募集が終了している若しくは条件が変更されている場合などがございます。予めご了承ください。

物件の基本情報

  • 賃料
    お問い合わせください
  • 坪単価
  • 共益費
  • 所在地
    東京都新宿区西新宿7-2-5
  • 駅徒歩
    都営大江戸線「新宿西口」駅徒歩2分 JR各線「新宿」駅徒歩7分 西武新宿線「西武新宿」駅徒歩4分
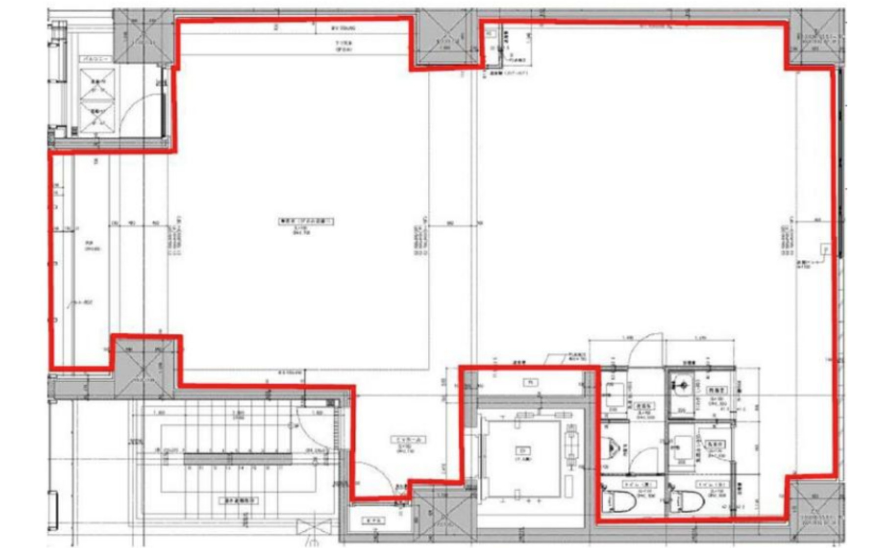
  • 専有面積
    37.18坪/122.93㎡
  • 竣工
    2017年12月築
  • 構造
    RC造(鉄筋コンクリート)
  • 敷金/保証金
    10ヶ月
  • 償却/更新料
    1ヶ月/新賃料1ヶ月
  • 契約期間
    2年
  • 契約種類
    定期借家契約

こだわり条件

  • 物件形態
    テナントビル 事務所仕様
  • 礼金
    1ヶ月