デスクマくん

クリニック開業物件 No.259 【居抜き】渋谷駅徒歩4分/約65坪

更新日 2025.11.21

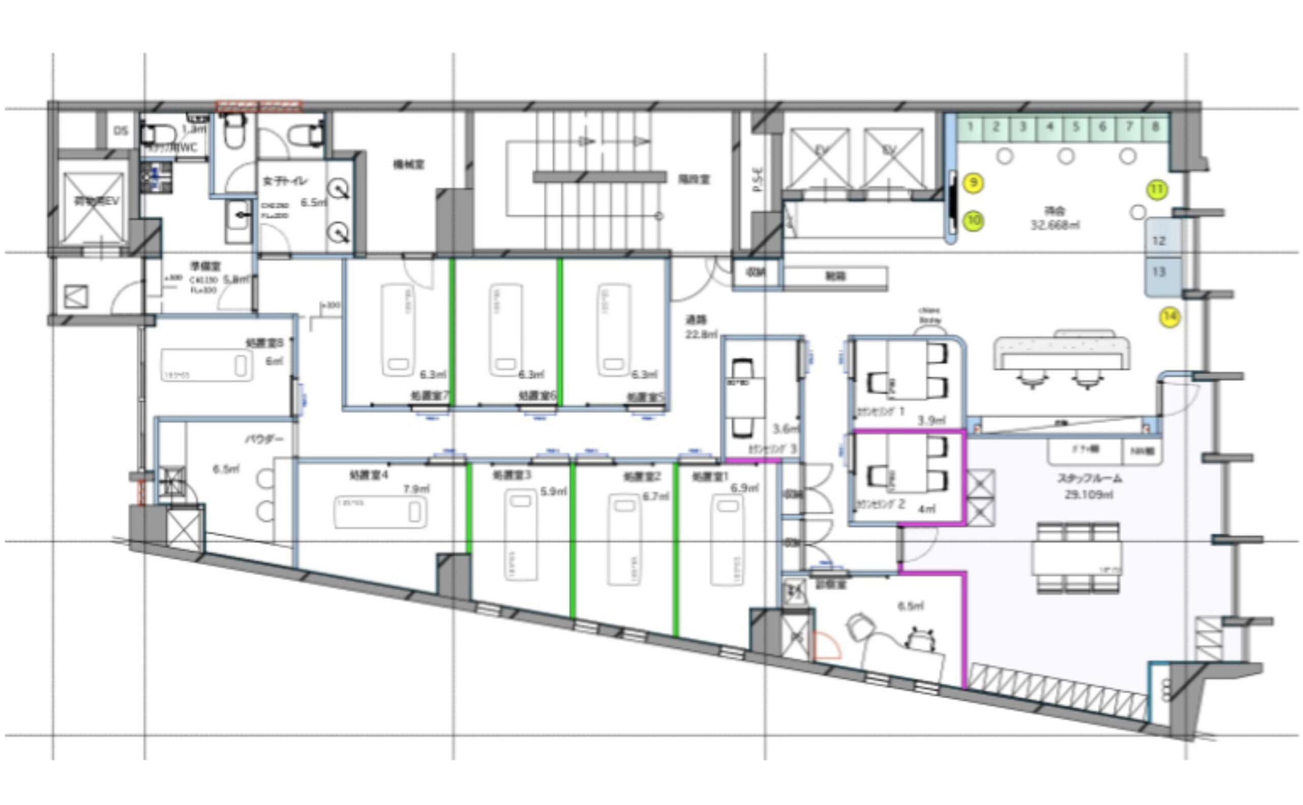
★脱毛クリニックの居抜き

本物件の情報は更新日時点の情報であり、最新情報においては募集が終了している若しくは条件が変更されている場合などがございます。予めご了承ください。

物件の基本情報

  • 賃料
    お問い合わせください
  • 坪単価
  • 共益費
  • 所在地
    東京都渋谷区神南
  • 駅徒歩
    JR山手線「渋谷」駅徒歩4分 東急東横線「渋谷」駅徒歩3分
  • 専有面積
    約67.15坪
  • 竣工
    1969年
  • 構造
    SRC造(鉄骨鉄筋コンクリート造)
  • 敷金/保証金
    お問い合わせください
  • 償却/更新料
    お問い合わせください
  • 契約期間
    7年
  • 契約種類
    定期借家契約

こだわり条件

  • 物件形態
    居抜き